








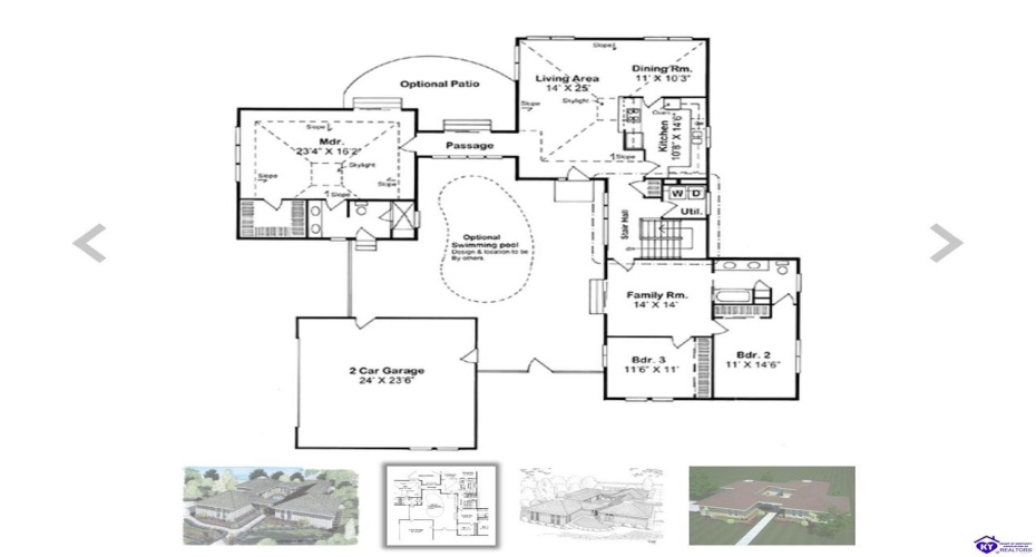
RARE OPPORTUNITY! Opportunity of a lifetime awaits you with this property! Located in desirable Johnsport subdivision on Thorn side Drive at the end of the cul-de-sac! Big PLUS has two lots. This new construction is selling as is. Possibilities possibilities possibilities! So much to Love with the floor plan set up as a three bedroom two and half bath home with privacy. Let’s make this your dream home with adding all the extra features that you would like to make this property just for you! Already under roof just ready for the new buyer to put all the finishing touches on this unique property! Located in the heart of Kentucky! Located near Shopping, boutiques, restaurant, hospital, and Green River Lake only miles away. Data believed to be correct, but not guaranteed. Buyer to verify data prior to offer.