
Property Description
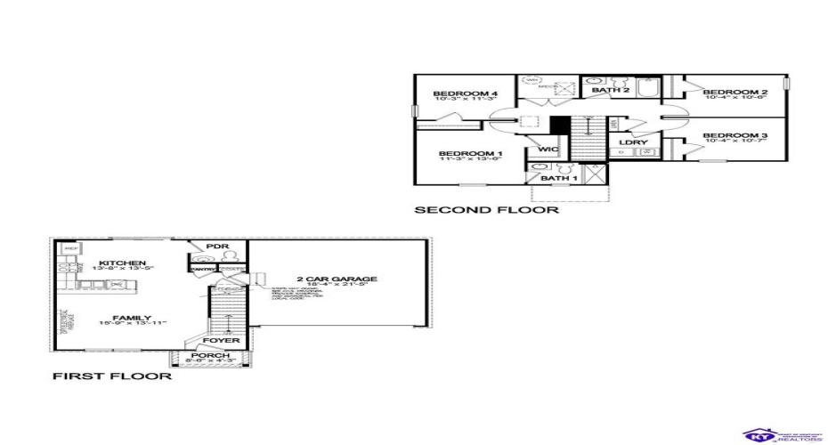
Introducing The Fairton floorplan, a brand new 2-story home offering 1,510 square feet of thoughtfully designed living space. With 4 bedrooms, 2.5 bathrooms, and a 2-car garage, this beautiful home caters to modern family needs. The open-concept first floor features a large family room seamlessly connected to a spacious kitchen, making it ideal for both entertaining and everyday life. The kitchen features stainless steel appliances, functional island, and easy to maintain luxury vinyl plank flooring. On the second floor, you’ll find four generously sized bedrooms, including the primary suite with private ensuite bath and a walk-in closet, plus a convenient laundry room. The Fairton is a beautiful home that utilizes space to the fullest!
Features
: Forced Air
: Microwave, Range/oven, Dishwasher, Disposal
Address Map
US
KY
Hardin
Elizabethtown
Cowley Farms
42701
Aqueduct Pkwy
0
E0° 0' 0''
N0° 0' 0''
Additional Info
: Electric
Active
Other
Slab
: Walk-in Closet(s)
: Cable Available
: Breakfast Bar
: Traditional
Yes
2
: Garage Attached, Front Entry, Garage Door Opener
For Sale
Aqueduct Pkwy, Elizabethtown, Kentucky 42701
0 Bedrooms
2 Bathrooms
1,510 Sqft
$294,900
Listing ID #HK24004135
Basic Details
Property Type :
Listing Type : For Sale
Listing ID : HK24004135
Price : $294,900
Bedrooms : 0
Rooms : 0
Bathrooms : 2
Full Bathrooms : 2
Half Bathrooms : 0
Square Footage : 1,510 Sqft
Year Built : 2024
Lot Area : 0.28 Acre
Status : Active