


































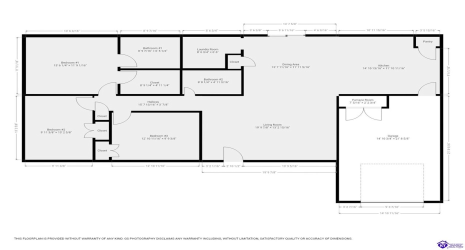
Move-In Ready! Celebrate the holidays in your new home! This newer home boasts an open floorplan with great flow. 3 bedrooms, 2 full baths, attached garage, all set on a 1+ acre lot! ** This well maintained home is located on a cul-de-sac and set back from the street. Greeted by a covered porch, enter the spacious great room. You’ll find plenty of space to relax, play, spread out…or snuggle up. Like space in your kitchen? Wow! Abundant countertop surface, cabinetry, storage, and pantry. Luxury vinyl flooring for easy cleaning and still enough area to add a table, cart or island. The open dining area adjoins both rooms and can accommodate a large table. Down the hallway you find a primary bedroom fit for a king size bed, along with a private bath with full-size walk-in shower and … walk-in closet. BRs 2 & 3 are good size with full closets. Hallway full bath has shower/tub. Laundry room is located off the dining area. Double doors give access to the deck and large rear yard. 1-car attached garage opens into the kitchen for easy access. Driveway has extra wide paved parking pad. Metal roof. Some warranties remain on this home & appliances. Very nice home.